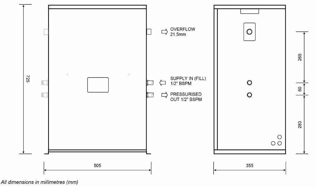
Pressurisation Set Single Pump 0.50 Description
Specifications
Â
| Pump Type | Power | Q=Capacity | |||||||||||
| Â | Â | Â | Â | l/min | 0 | 5 | 10 | 15 | 20 | 35 | 50 | 65 | 70 |
| Single Phase | Three Phase | Kw | HP | m3/h | 0 | 0.3 | 0.6 | 0.9 | 1.2 | 2.1 | 3 | 3.9 | 4.2 |
| H=Total manometric head in meters | |||||||||||||
| PRA050 | PRA050 | 0.37 | 0.5 | 40.5 | 37 | 33.3 | 28.7 | 28.7 | 23.7 | 5 | Â | Â | Â |
| PRA080 | PRA080 | 0.6 | 0.8 | 62 | 56 | 50.7 | 45.1 | 45.1 | 39.8 | 25 | 12 | Â | Â |
| PRA1.00 | PRA1.00 | 0.75 | 1 | 71 | 71 | 54.4 | 47 | 47 | 40.4 | 24.3 | 13 | Â | Â |
Â
Features
- Easy setup and use.
- Flexible connections (Left & Right side).
- System Safety and Lock Feature.
- Single controller for 2 circuits.
- Single and dual pump option.
- Automatic change over on pump fault
- Remote BMS option with customisable volt free contacts.
- Robust steel enclosure
- Error history Log
- Hi and Low-Level Alarm
Â
Delivery
All our Pressurised Pumps are for delivery by customer offload. This entails the customer to acquire the right manpower and/or machinery to help unload the tank/s from the delivery vehicle.
If you require any specific requirements regarding delivery, please call us before order is placed, where we will try and accommodate this facility for you.














Reviews
There are no reviews yet.